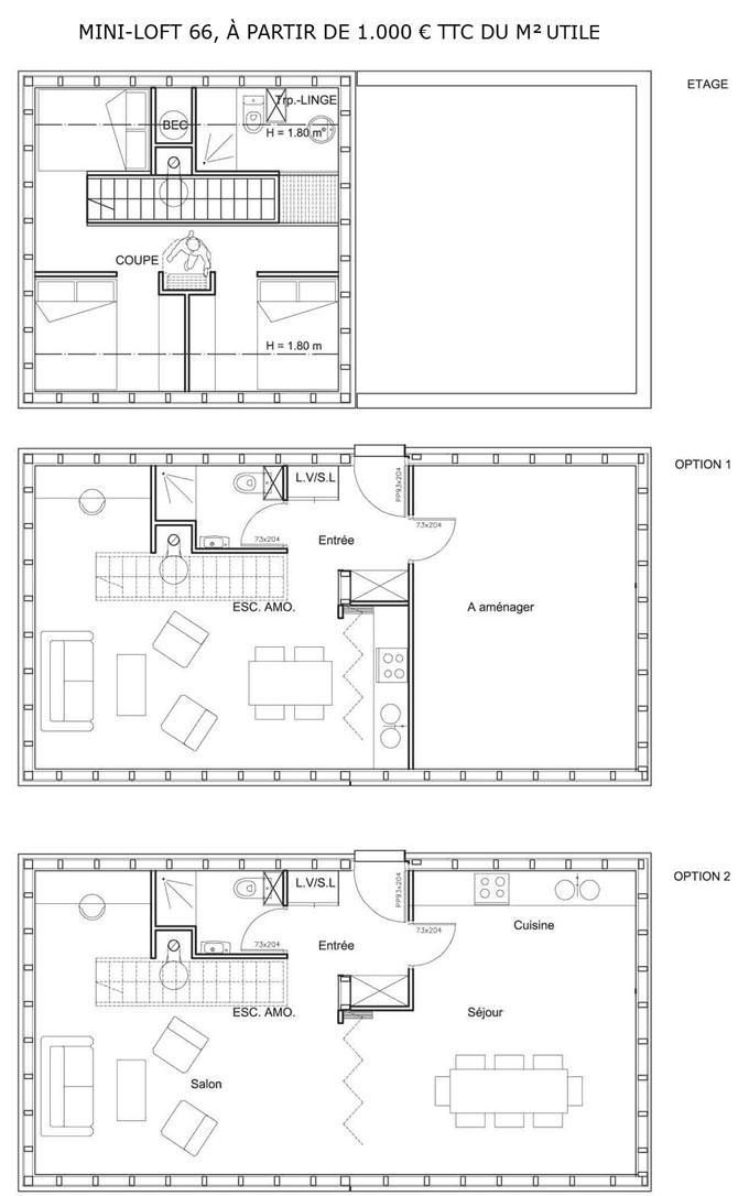
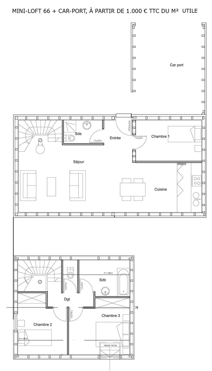
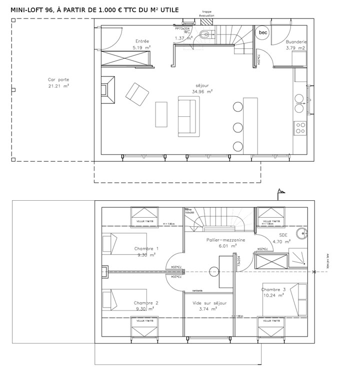
Quelques plans des maisons ECOP Habitat
Exemples de mini-lofts pour votre maison écologiqu
- Le constructeur ECOP
- Bureau études : conception de vos plans
- La maison bois
- La maison écologique
- La maison bioclimatique
- La maison BBC
- La maison passive
- La maison positive
- La maison RT2012
- La maison écologique portable : Microloft
- Le loft écologique : Maxiloft
- Energies renouvelables
- Estimez votre projet
- Le financement
- Recherche de terrain
Coût de la prestation ECOP Habitat :
25,00 € TTC / m2 habitable,
8,00 € TTC / m2 surface annexe,
Exemple : une maison de 80 m2 habitables, de 18 m2 de garage et 15 m2 de auvent couvert ou terrasse = 2 264,00 € TTC (80 x 25€ + 18 x 8€ + 15 x 8€)












