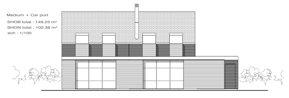
Quelques façades des maisons ECOP Habitat
Ces différentes façades d'habitations écologiques ont été conçues par le bureau d'études d'ECOP Habitat.
Exemples de façades pour votre maison écologique
Ces façades sont la propriété du constructeur ECOP Habitat, leur exploitation ou reproduction est interdite sans accord préalable.
- Le constructeur ECOP
- Bureau études : conception de vos plans
- La maison bois
- La maison écologique
- La maison bioclimatique
- La maison BBC
- La maison passive
- La maison positive
- La maison RT2012
- La maison écologique portable : Microloft
- Le loft écologique : Maxiloft
- Energies renouvelables
- Le financement
- Recherche de terrain
Coût de la prestation ECOP Habitat :
25,00 € TTC / m2 habitable,
8,00 € TTC / m2 surface annexe,
Exemple : une maison de 80 m2 habitables, de 18 m2 de garage et 15 m2 de auvent couvert ou terrasse = 2 264,00 € TTC (80 x 25€ + 18 x 8€ + 15 x 8€)




























