Quelques façades
des maisons ECOP Habitat

A chaque client, une maison écologique sur mesure, unique, signée ECOP Habitat, votre constructeur d'éco habitat dans le Morbihan.

Exemples de façades pour votre maison écologique :

Façade Loft Bio Climatique

Façade Loft Bioclimatique

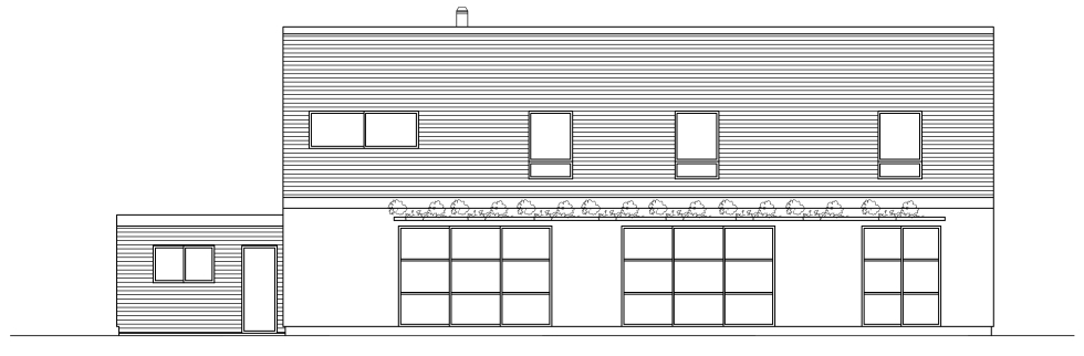
Façade Loft Classique

Façade Loft Classique

Façade Loft contemporaine avec coulissant

Façade Loft contemporaine avec coulissant

Façade Loft décallé

Façade Loft décallé

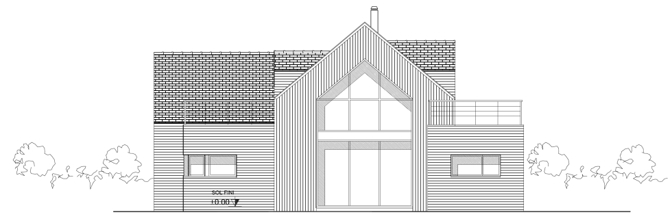
Façade Loft en pignon

Façade Loft en pignon

Façade Loft avec coulissant

Façade Loft mixte avec coulissant

Façade Loft mixte, toit à une pente

Façade Loft mixte, toit à une pente

Façade Loft plain pied

Façade Loft plain pied

Façade Loft sur mesure vue pignon

Façade Loft sur mesure vue pignon

Loft variante

Loft variante

Pignon loft à une pente

Pignon loft à une pente



Revoir les CGV
contactez-nous

Ecop sarl, Parc d'Innovation Bretagne Sud, SBFI, CP 125, Immeuble Le Prisme, 56038 Vannes cedex - RCS Vannes 480 931 336 00022 - TVA FR 15 480 931 336
Contact : Sébastien BRANCQ 06 25 43 47 84 - Téléphone : 02 97 66 58 83 - Télécopie : 02 97 66 58 25

Hidden gems

Votre maison "Version-Loft" d'Ecop-Habitat est conçue par l'Architecte Laurent Thery - garantie professionnel MAF par contrat n° 51778/F/5 inscrit au tableau régional de l'Ordre des Architectes de Bretagne ral 2001, n° national 049237
Estimatif avant appels d'offres incluant budget Construction complet + études techniques + maîtrise d'œuvre + assurances + 5% : Etude du projet + droits d'utilisation + dépôt permis.
© marques et modèles déposés - Reproduction interdite sans l'accord d'Ecop Habitat.
Illustrateur : Reno, MARCA

Création site Altiplano